+37061294838
Ateities gyvenamieji namai turi žengti išvien su tvarumu. Technologijos neišvengiamai tampa kasdienio gyvenimo dalimi, tačiau jų taikymas namuose vis dar išlieka asmeniniu pasirinkimu. Mano vizijoje ateities namai – tai kompaktiškas, mažaivietos užimantis tūris, kuriame kruopščiai apgalvotas kiekvienas kvadratinis metras. Namas pasižymi visomisbūtiniausiomis erdvėmis, o jo vieta – natūralioje gamtos aplinkoje.
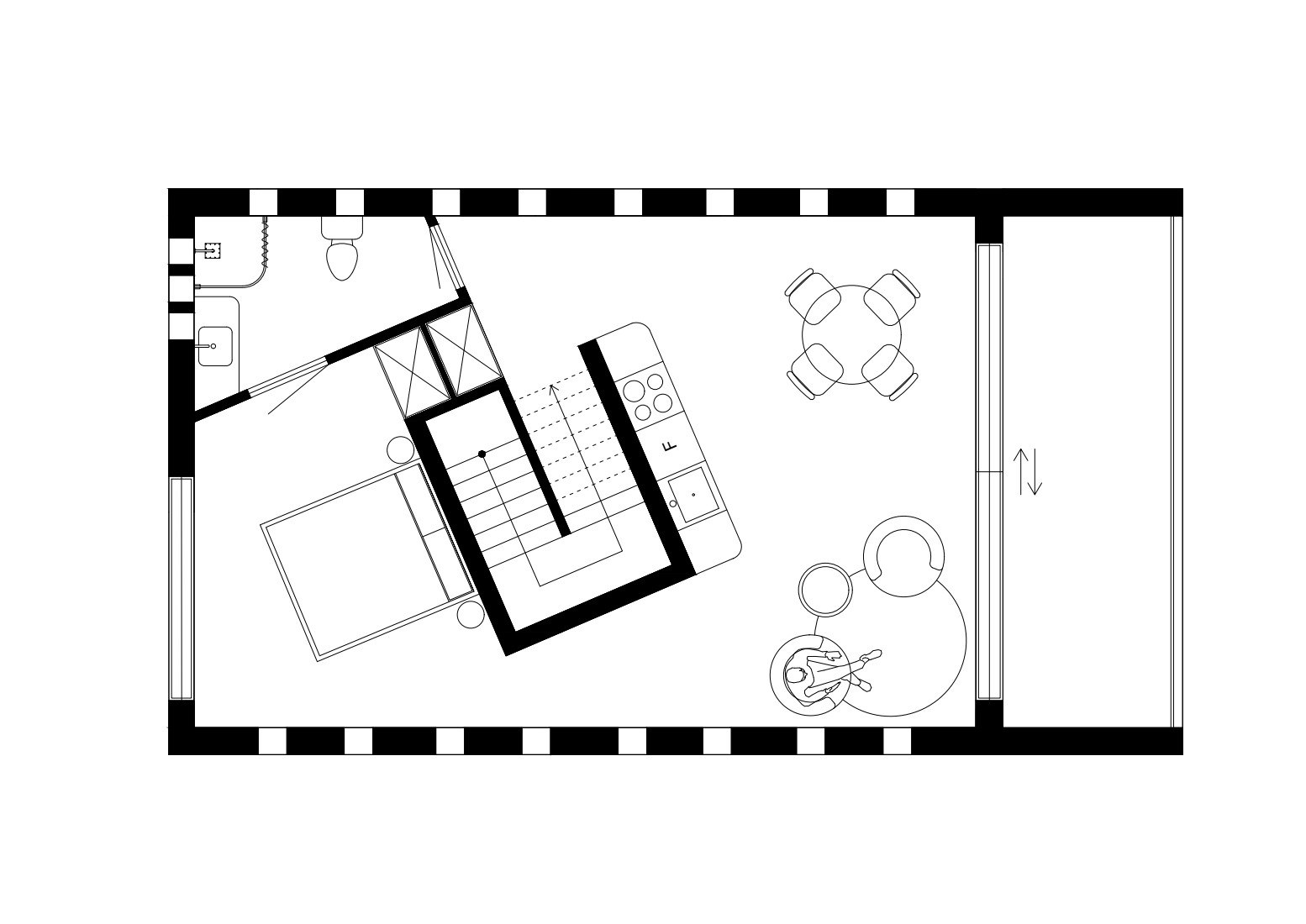
Konkursui teikiamas projektas įgarsina minėtą filosofiją. Tai 35 kv. m. ploto namelis, įkvėptas architekto Rem Koolhaas gyvenamojo namo „Maison à Bordeaux“. Tačiau šis variantas yra gerokai kompaktiškesnis ir pritaikytas minimalistiniam, tvariam gyvenimui. Namas yra pakeltas nuo žemės paviršiaus, taip suteikiama galimybę gyventojams mėgautis gamtosvaizdais bei iš esmės mažą plotą paverčiant labai ypatingu.
Erdvės išplanavimas buvo kruopščiai apgalvotas, kiekvienas kvadratinis metras išnaudojamas ir nelieka be funkcijos. Patekus į namą, matome identiškas, standartiniui namui būdingas erdves– pirmiausia patekus į vidų mus pasitinka laiptinėkuri veda į koridorių su drabužine, kairėje ranka pasiekiamos vonios kambario durimis. Toliau atsiveria virtuvė su vaizdu į gamtą, pereinanti į valgomąjį bei poilsio zoną. Centrinė namo ašis– laiptinė, patalpoje formuoja praėjimą į miegamojoerdvę. Čia suprojektuota plati dvigulė lova, drabužinė bei antras įėjimas į vonios kambarį. Namo išdėstymas sukurianatūralų judėjimo ratą – kiekviena erdvė sklandžiai pereina į kitą.
Šis projektas įrodo, kad išsamiai suplanuota mažo ploto gyvenamoji erdvė gali ne tik atitikti, bet ir viršyti šiuolaikiniuskomforto bei gyvenimo kokybės lūkesčius. Be to, tokie sprendimai prisideda prie mažesnio CO₂ pėdsako, mažesnės žalosaplinkai ir atsakingo žemės naudojimo.
JUNG. Mažiesiems projekto akcentams buvo pasirinkti JUNG kištukiniai lizdai ir jungikliai. Jungikliųmodelis – CD serijos raudonos spalvos, kištukiniai lizdai – Schuko® serijos. Tiek jungikliai, tiek lizdaiyra tamsiai raudonos spalvos, kuri minimalistiniame interjere suteikia charakterio, šilumos ir, svarbiausia, ilgainiui išlaiko estetinį vaizdą be dažnos priežiūros.
COSENTINO. Stalviršiui ir virtuvės lentynai pasirinktas COSENTINO gamintojo, Dekton prekinioženklo, „Nebu” dirbtinis akmuo. Ši, 2cm storio travertiną imituojanti medžiaga yra neporėta, kas yraitin aktualu zonose, kuriose dėmės ir drėgmė yra kasdienis iššūkis.
GROHE. Tiek vonios tiek virtuvės zonose pritaikyti Grohe maišytuvai. Vonioje naudojamaspotinkinis, elegantiško dizaino maišytuvas “Atrio Private Collection”, pasirinktas atspalvis“supersteel”, produkto kodas 20 589 DC0. Siekiant vientisumo maišytuvas virtuvėje pasirinktas to pačio “supersteel” atspalvio maišytuvo modelis “Grohe Minta Touch, right, 31 358 002, electronic sink mixer C-Spout with pull-out dual spray”. Modelis išskirtinis ne tik tuo, kad yra ir minimalaus ir modernaus dizaino, bet kartu buvo patvrtintas ir rekomenduojamas naudoti neįgaliesiems beipagyvenusiems žmonėms.
AKZONOBEL. Projektui pasirinkti matiniai „Sadolin EasyCare GN.01.89“ dažai – dėl savoišskirtinio atsparumo ir praktiškumo. Dėl sudėtyje esančio vaško jie atstumia drėgmę ir nešvarumus, todėl paviršius lengvai valomas ir išlieka tvarkingas ilgiau, net intensyviai naudojamose erdvėse.
Pasirinkta spalva GN.01.89 – švelni, neutrali pilkšva tonacija, kuri kuria jaukią ir ramią atmosferą. Ji lengvai dera prie įvairių interjero sprendimų ir išlieka aktuali nepaisant kintančių tendencijų.
BRASA. Virtuvės LED apšvietimui dėl savo ilgaamžiškumo pasirinkti “Brasa” aliuminiai profiliai. Po virtuvės lentynėle projektuojamas išorinis aliuminio LED juostos profilis A-HP14. Apšviesti visamvirtuvės baldui apačioje naudojamas įfrezuojamas aliuminio LED juostos profilis AHPF5, kurioapšvietimas krenta kampu.
GEBERIT. Vonios patalpoje pasirinktas Geberit iCon Compact pakabinamas WC puodas. Šis WC puodas yra kompaktiško ilgio – tai reiškia, kad ši vonios kambario detalė bus vizualiai lengvesnė, beinužims mažiau erdvės. Taip pat WC puodas išsiskiria TurboFlush vandens nuleidimo technologija, kuriužtikrina ypač tylų bei efektyvų WC puodo nuplovimą su mažesniu vandens kiekiu, nei įprasti WC puodai. Vandens nuleidimo mygtukas naudojamas Sigma01.
EJOTRA. Fasado apdailai pasirinktas Ejotra medžio dailylenčių imitacija, kuri yra pagaminta iš 100% perdirbto plastiko. Medžiagą yra lengva prižiūrėti, esant poreikiui galima netgi valyti. Pasirinktasatspalvis- Anthracite Grey (ca. RAL 7016).
WOODLIFE FLORING. Grindų dangai pasirinkta Woodlife flooring tiekėjų Chevron raštu klotanatūrali uosio Europen Ash Premium Multiplank mediena, impregnuota “Calm” apsauginiu laku, kurissuteikia lengvą baltą atsplavį. Natūralios medžio grindys yra ilgaamžė investicija tiek projektoeksploatacijos tiek žmogaus sveikatos aspektais.
VEGSVA. Projekto balkono turėklai 90cm aukščio ir beveik 5m ilgio pasirenkama Vegsva komandosgamyba.
SAMSUNG. Vidaus komfortui sukurti ant vienos iš centrinės ašies/ laiptinės sienos kabinamasSamsung Wind Free Avant Black kondicionierius. Technologija leidžia švelniai ir tolygiai reguliuotiklimatą, bei dėl pažangios konstrukcijos sistema gali vėsinti iki 43% greičiau naudojant “Powerboost” technologiją.
WAYNERR. Laiptinėje garsams sugerti pasirinktos Waynerr akustinės plokštės, pasirinktas atspalvis- Dune Shade.


















