+37062251638
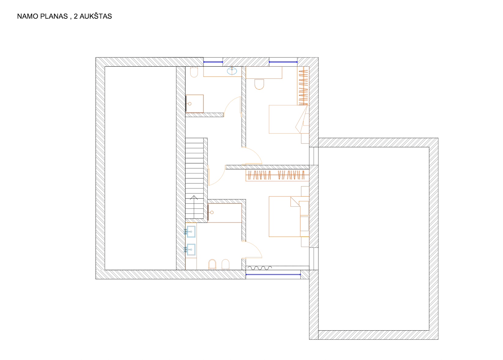
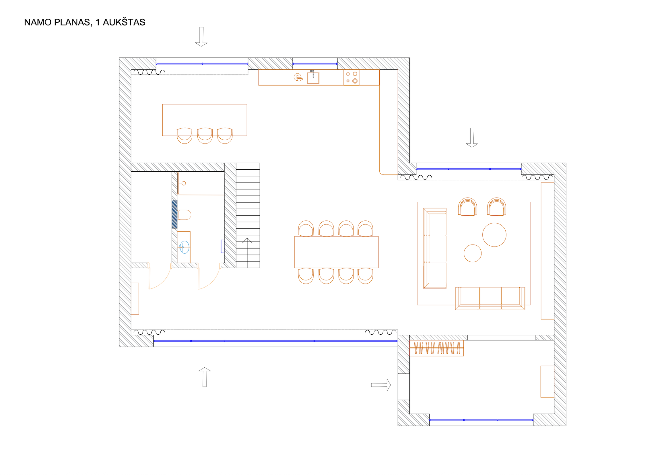
Dviejų aukštų namas suprojektuotas šeimos poreikiams. Bendras namo plotas siekia 300 kv. metrų. Be pagrindinių naudojimo poreikių tenkinimo, namo projektas turi tikslus: pirmenybę teikti natūralių ir perdirbtų medžiagų naudojimui, optimizuoti energijos vartojimo efektyvumą, panaudoti atsinaujinančius išteklius (saulę, vėją, vandenį). Ant namo stogo įrengtos saulės baterijos. Namo padėtis turi atitikti optimalų saulės ir vėjo energijos naudojimą. Šio namo idėja – ateities namo tendencijos: daug natūralios žalumos, mažas papildomos energijos suvartojimas, maksimalus natūralios energijos bei naujausių technologijų panaudojimas.
JUNG. Namuose naudojami prietaisai valdomi naująja „JUNG HOME“ sistema. Naudojant „Bluetooth® SIG Mesh“ technologiją, ši decentralizuota sistema sujungia apšvietimo, užuolaidų, šildymo ir namų siurblio valdymą. Projekte panaudoti išmanieji kištukiniai lizdai ir jungikliai. „JUNG HOME SCHUKO® Energy“ kištukinis lizdas – išmanusis sprendimas, leidžiantis matuoti suvartojamą elektros energiją, todėl jos vartojimą galima tikslingai valdyti. Energijos suvartojimo duomenis patogu peržiūrėti programėlėje.
COSENTINO. Virtuvės stalviršiui ir svetainės lentynai panaudotos „Dekton“ kolekcijos „Onirika“ plokštės „Trance“. Iš jų pagaminti paviršiai atsparūs smūgiams bei įbrėžimams ir yra lengvai prižiūrimi.
GROHE. Virtuvėje pasirinktas „Grohe Essence 30504KF0“ aukštos klasės vienos svirties virtuvinis maišytuvas, išsiskiriantis elegantišku „Phantom Black“ (matinės juodos) dizainu ir funkcionalumu. Vonioje – „GROHE Cubeo“ vienos svirties praustuvo maišytuvas, puikiai derantis prie vonios kambario interjero. Jo išskirtinis „soft square“ dizainas ir matinė juoda apdaila suteikia elegancijos ir išskirtinumo.
AKZONOBEL. Projektuojamame name aukštos lubos, kad būtų sukurtas norimas bendras vaizdas, luboms panaudoti „SADOLIN AMBIANCE SKY“ „Magnolia Spring“ spalvos dažai. „SADOLIN AMBIANCE SKY“ – šviesą išsklaidantys, didelio dengiamumo lubų dažai, tolygiai padengiantys paviršius ir paslepiantys nedidelius nelygumus. Sienoms naudoti to paties atspalvio „SADOLIN AMBIANCE PEARL“ dažai, atsparūs dėvėjimuisi.
BRASA. Miegamajame suprojektuota itališka drabužinių sistema „WALK IN“. Virtuvėje panaudoti „HAFELE“ LED apšvietimo sprendimai ir „MESH“ sistemos valdymas (smart home), leidžiantis kurti individualius apšvietimo scenarijus, valdyti šviesos ryškumą, spalvinę temperatūrą ir spalvas, jungti įrenginius į virtualias grupes be fizinio sujungimo.
GEBERIT. Dėl funkcionalumo, kokybės ir dizaino dermės vonios kambario interjerui pasirinkti „Geberit“ sprendimai. Pritaikytas „Smyle Square“ pakabinamas WC puodas be vidinio apvado ir plonas dvisluoksnis dangtis užtikrina tiek estetiką, tiek higieną. Dvigubas „Geberit iCon“ praustuvas iš tos pačios serijos derintas su minimalistine „Geberit ONE“ spintele. Vandens nuleidimo mygtukas – „Geberit Sigma40“, kvadratinis, dviejų kiekių nuleidimui, parinktas tamsaus tono. Dušo zonoje integruotas „CleanLine“ latakas.
WOODLIFE FLOORING. Grindims pasirinktas ąžuolas „Crème Chantilly“. Paviršiaus tekstūra – lengvai šukuota, apdaila – balinta, alyvuota ir padengta ypač matiniu kietuoju vašku. Šių grindų apdailai naudojama mažos emisijos natūrali alyva, kietojo vaško alyva ir vandens pagrindo lakai – aplinkai ir žmogui draugiškos, aukštos kokybės medžiagos.
WAYNERR. Virtuvei naudojamos „SILENT FOREST ACOUSTIC“ dekoratyvinės panelės – aukštos kokybės akustinės panelės, sukurtos tam, kad virtuvės aplinkoje būtų užtikrinta geresnė garso izoliacija, sugertis ir aukšto lygio estetinė išraiška. Šios panelės skirtos ne tik vizualiai pagražinti interjerą, bet ir veiksmingai mažinti garsų aidą, šnarėjimą, indų ar buitinės technikos skleidžiamą triukšmą.
SAMSUNG. Name suprojektuota oro kondicionavimo sistema „Multi Split“. Prie jos lauko įrenginio galima prijungti iki penkių vidaus oro kondicionierių „Samsung Multi Split“. Tai labai patogu, kai keliuose kambariuose reikia palaikyti skirtingą mikroklimatą.
VEGSVA. Stikliniai laiptų atitvarai – moderni, elegantiška apsauginių laiptų turėklų sistema tiek interjere, tiek eksterjere. Iš smūgiams atsparaus grūdinto stiklo pagaminti laiptų atitvarai kartu yra ir estetiškas erdvės akcentas.



















