rugilekliciute@gmail.com
+37067682945
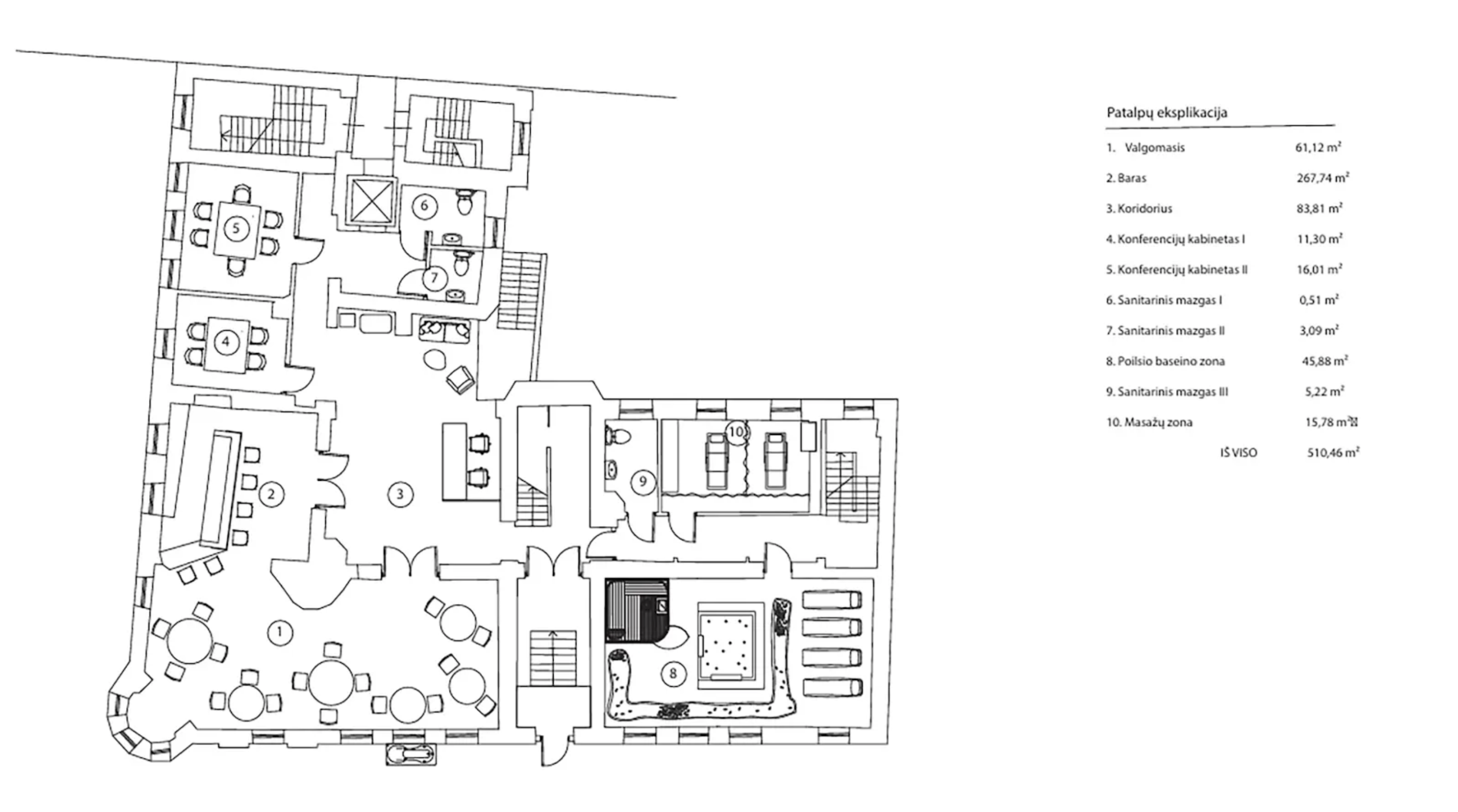
Viešbučio „GIJA“ interjeras įkvėptas lietuviškos gamtos, tautiškumo ir gyvenimo gijos simbolizmo. Įsikūręs Vilniaus centre, jis jungia lietuvišką tapatybę su tylos ir gamtos pojūčiu per švelnias žemės spalvas, natūralias tekstūras, kviesdamas svečius atsiriboti nuo miesto triukšmo ir patirti lėtą, atpalaiduojantį poilsį.
JUNG. Vientisai ir subtiliai interjero estetikai pasirinkti JUNG LS 990 dramblio kaulo spalvos jungikliai. Jų minimalistinis dizainas ir švelnus atspalvis harmoningai įsilieja į bendrą spalvinę paletę, palikdami techninius elementus beveik nepastebimus, o IP44 klasė užtikrina saugų naudojimą įvairiose zonose. Jie integruojasi su JUNG KNX protingų namų sistema, tad leidžia kurti apšvietimo scenarijus ir valdyti namų funkcijas paprastai, sklandžiai ir pagal individualius poreikius.
TORK. Aukšti higienos ir komforto standartai viešbutyje užtikrinami pasirinkus „Tork“ nerūdijančiojo plieno dozatorių su „Intuition™“ jutikliu (S4), 50 l nerūdijančiojo plieno šiukšliadėžę (B1) bei Tork šiukšliadėžė, 5 l, balta, B3, .Šie produktai palaiko aukščiausią švaros lygį, o nerūdijančio plieno paviršiai ir balta minimalistinė spalva subtiliai papildo vonios kambarių modernią, sterilią estetiką.
KATWOOD. Viešosiose zonose bei apartamentuose naudojamos KATWOOD kėdės UNĖ, fotelis MILDA ir stalai JORIS su bouclé audiniu „Domino“ ir,, Very Light‘‘ alyvuoto medžio apdaila. Šie baldai pasirinkti dėl savo natūralumo, švelnios tekstūros – lietuviško dizaino, kuris sustiprina projekto idėją. O tai taip pat kuria jaukią, namus primenančią atmosferą.
RB SOLUTIONS. Poilsio zonų ir apartamentų komfortą užtikrina LeComfort sofa ADAM, pufas ADAM, kurių pasirinktas audinys yra beauty Cod. 534. ir lova CALVIN – bride Cod. 019. Šių baldų paprastumas, minkšti apmušalai ir organiškos formos skatina atsipalaidavimą ir emocinį komfortą, kuris yra esminė viešbučio „GIJA“ koncepcijos dalis. RB Solutions, kaip baldų partneris, taip pat siūlo ir nestandartinių baldų bei individualių sprendimų galimybes tinkančias ir viešbučiams.
GRINDŲ ARSENALAS. Grindims pasirinktos kompozitinės keramikinės grindys PRO Nature „Clare“, kurios dėl didelio atsparumo idealiai tinka viešosioms viešbučio erdvėms. Ši danga formuoja švarų interjerą ir užtikrina ilgaamžiškumą intensyvaus naudojimo zonose. Medžio apdailos imitacija subtiliai papildo kuriamą interjero koncepciją, atspindinčią lietuvišką tapatybę.
GEBERIT. Vonios kambariuose įrengti „Geberit AquaClean Alba“ pakabinami WC su integruota apiplovimo funkcija, užtikrinančia aukštą higienos lygį ir komfortą kasdieniam naudojimui. Papildomai integruota pakabinama „Geberit Acanto“ bidė ir minimalistinis „Sigma40“ nuleidimo mygtukas. Šie sprendimai pasirinkti dėl komforto, funkcionalumo ir modernaus dizaino, derančio apartamentų vonios erdvėse.
NOSTRA. Apartamentų miegamuosiuose naudojama „NOSTRA EXCLUSIVE“ patalynė TAYLOR– ryškiai balta, juostuota patalynė iš 100 % šukuotinės medvilnės satino, kuri užtikrina švelnų prisilietimą ir komfortišką miegą. Vonios kambariuose bei spa zonose naudojami rankšluosčiai 550H LUX– stori, minkšti, itin gerai sugeriantys drėgmę, nes yra iš 100% šukuotinės medvilnės. Šiame projekte pasirinkti BATHROBE MICRO-320 chalatai, lengvi, šilti ir malonūs dėvėti po SPA procedūrų.
RUBINETA. Rubineta virtuvinis maišytuvas Bona 33 DG ir vonios praustuvas Cozy 18 pasirinkti dėl modernaus, subtilaus dizaino ir patikimo funkcionalumo. Jų minimalistinė estetika harmoningai dera su švariomis interjero linijomis, pabrėžia erdvės vientisumą ir užtikrina patogų, komfortišką kasdienį naudojimą.
SALTO SYSTEMS. Viešbučiui administruoti pasirinkta įeigos kontrolės sistema „Salto“, suteikianti galimybė intuityviai valdyti įeigą į viešbučio kambarius ir bendrąsias zonas kortelėmis ar mobiliaisiais įrenginiais. Minimalistinio dizaino spynos „Ælement Fusion“ veikia tyliai ir ne – pastebimai, užtikrindamos saugumą, patogumą ir sklandų infrastruktūros veikimą. Nepamirštas ir SPA zonos saugumas. Čia svečių turtą persirengimo kambarių daiktų spintelėse saugo spynelės GANTNER NET ir GL7p.



















