Rugilė Zdanytė
rugile.zdanyte@gmail.com
+37063075717
Kotryna Kuraitė
kuuraite@gmail.com
+37061226290
Emilija Bakanė
+37068445942
bakaneemilija@gmail.com
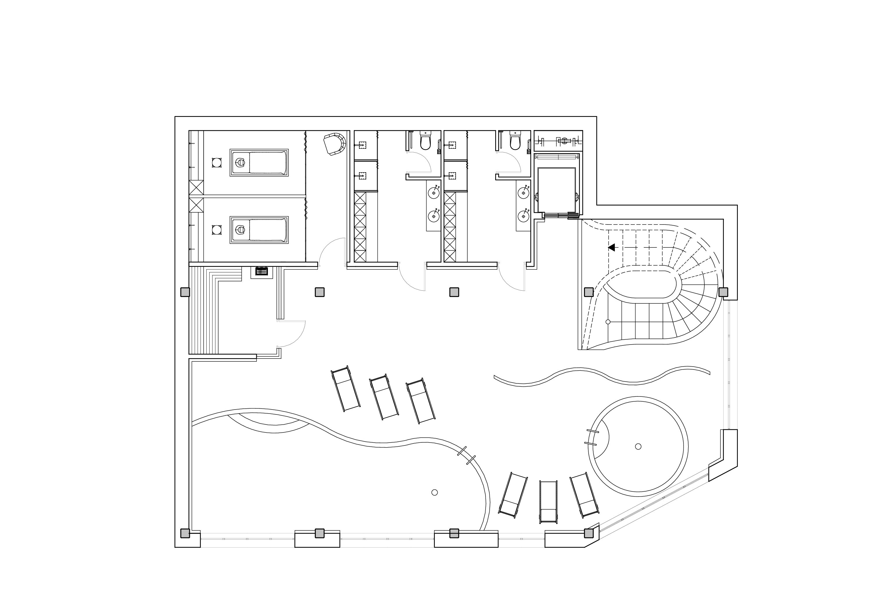
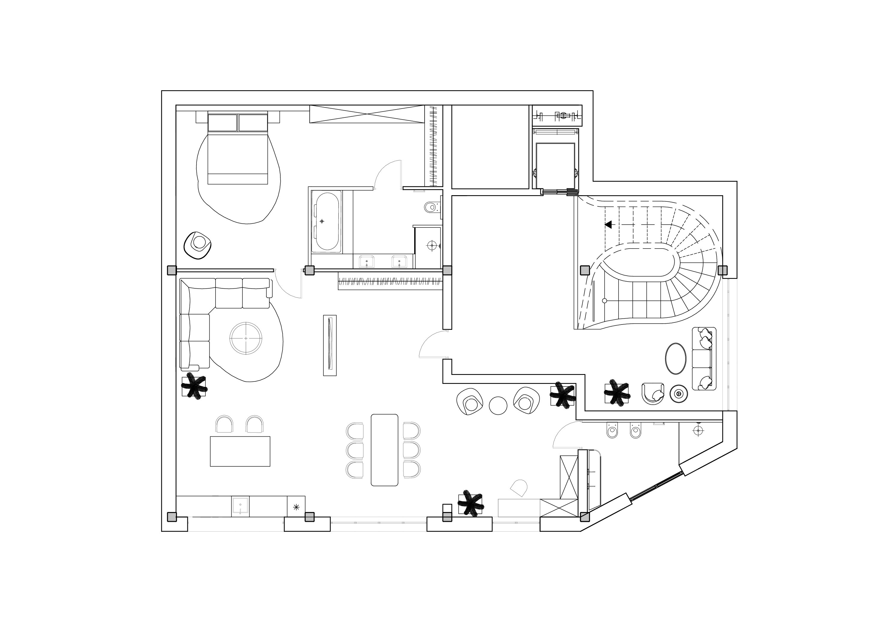
Aria N°5 viešbutis projektuotas kaip vientisa kelionė, kurioje kiekviena erdvė natūraliai pereina į kitą – nuo reprezentatyvios recepcijos iki intymių apartamentų ir atpalaiduojančių SPA zonų. Pagrindine idėja tapo šiuolaikiškai interpretuotas Mid-Century Modern, Art Deco ir Bauhaus stilių dialogas, leidžiantis suderinti geometrišką architektūrą su minkštomis, žmogui artimomis formomis.Didelis dėmesys skirtas medžiagiškumui – naudotas natūralus medis, akmens paviršiai, keramika ir metalas, kurie ne tik formuoja estetinį identitetą, bet ir užtikrina ilgaamžiškumą intensyviai naudojamose viešbučio zonose.
Šiame projekte parinkti sprendimai orientuoti į ilgaamžiškumą, komfortą ir efektyvų viešbučio eksploatavimą. Vonios kambariuose įdiegta Geberit sanitarinė įranga su TurboFlush nuleidimo technologija bei Rubineta termostatiniai maišytuvai, užtikrinantys vandens taupymą ir komfortą.
SPA ir drėgnose zonose pasirinktos Classen Ceramin plytelės, atsparios vandeniui ir mechaniniam poveikiui. Baldų sprendimai kuriami individualiai su RB Solutions, papildyti La Cividina, Vondom, Pedrali gaminiais, o akustiniam komfortui naudojamos Devorm Mute Tone PET felt panelės. Privatumo ir šviesos kontrolei parinktos Casamance Firminy užuolaidos, tekstilė – Nostra, o higienos zonose naudojami TORK SmartOne sprendimai.
JUNG. Projekte panaudota JUNG produkcija – LS 990 serijos jungikliai ir kištukiniai lizdai „Terre Sienne Brûlée“ spalvos bei išmaniojo namo sistema JUNG KNX. Šie sprendimai pasirinkti dėl aukšto patikimumo, išskirtinio dizaino vientisumo ir ilgaamžiškumo, užtikrinančio tiek estetinę, tiek techninę projekto kokybę.
TORK. Naudoti komerciniai higienos sprendimai- „Tork SmartOne®“ tualetinio popieraus ritinių dozatorius iš nerūdijančiojo plieno T8, 27cm x 27cm x 17cm. Pasirinkta dėl patvarumo, lengvos priežiūros ir ekonomiško naudojimo intensyvaus srauto zonose. Masažo kabinete ir virtuvėje „Tork“ juodas odos priežiūros priemonių dozatorius su jutikliu „Intuition™“ S4 muilo ir dezinfekantų sistema, 27.8cm x 13cm x 11,3cm. Baro zonoje ir vonios kambaryje naudoti „Tork Xpressnap®“ stalo servetėlių dozatoriai „Walnut Image Line“ N4, medžiaga wood/plastic, spalva ruda, 19,3cm x 13,6cm x 20,3cm.
KATWOOD. UNĖ ąžuolinė kėdė, Audinys Wave, spalva Champagne, apdaila Aliejinė, spalva Light, išmatavimai : 45 cm × 77 cm × 49 cm. Pasirinkta dėl minimalistiško dizaino ir medžiagų kokybės.
RB SOLUTIONS. Naudoti baldai: La Cividina Anytime oda Imperial 508 su RAL7021 rėmu, Vondom Pasadena gultai Clay1122, Inclass Flat ir Essens M38 staliukai, Matrix kėdė recepcijai, Pedrali Kuadra 4429 barui. Aidui slopinti panaudotos Devorm Mute Tone Pet Felt akustinės panelės.
GRINDŲ ARSENALAS. Spa zonoje naudotos Classen Ceramin plytelės Donna Oryx White 57584, 2550×1202 mm. Parinktos dėl ilgaamžiškumo, atsparumo drėgmei ir šviesios, švarios estetikos. Recepcijos ir baro zonose naudota TARKETT ruloninė kilimininė danga Parade Lush- Desso Lush AD24, spalva 1279-V T1 400.
GEBERIT. Projekte sumontuoti Geberit Duofix potinkiniai elementai su itin tyliu Sigma bakeliu, kuris taip pat pasižymi itin efektyviu vandens suvartojimu.
Parinkti pakabinami Geberit Acanto pakabinamo WC puodo rinkinys, uždara forma, TurboFlush, su WC puodo dangčiu su itin efektyvia ir tylia vandens nuleidimo technologija TurboFlush.
Prie WC puodų priderinti Sigma20 vandens nuleidimo mygtukai. Praustuvų erdvėje sumontuoti tiesių linijų ant stalviršių pastatomi Geberit iCon praustuvai.
Dušo erdvėje sumontuotos grūdinto stiklo su nano sluoksniu pasukamosios durys Geberit GEO. Vonios erdvėje sumontuota tiesių linijų plonos briaunos Geberit Soana vonia.
NOSTRA. Naudota EXCLUSIVE Taylor 100% šukuotinės medvilnės patalynė, sniego balta. Taip pat naudota Zelandia Lux-450 antklodė, 100% Naujosios Zelandijos vilna, double face-dark grey spalva. Rankšluosčiai 500H KNTD, 70% šukuotinė medvilnė, 30% poliesteris, Optic White spalva ir rankšluosčiai 430H, 100% medvilnė, Optic White spalva. Vienkartinės šlepetės TERRY VELOUR. Parinkta komfortui, ilgaamžiškumui ir švaros pojūčiui sustiprinti.
RENVERSA. CASAMANCE Firminy 100 % perdirbto poliesterio 91841612 Kaki spalvos audinys. Taip pat naudoti DESIGNS AND COLORS Vellutino 100 % perdirbto poliesterio 8107417-01 Chocolate spalvos audinys. Šie Renversa audiniai pasirinkti dėl natūralių, žemiškų tonų, gero drapiravimo, privatumo ir akustinio komforto viešbučio bendrose bei poilsio zonose.
RUBINETA. Vonios kambaryje ir masažo kabinete naudoti praustuvo maišytuvai Cosy-18 (3/8). Taip pat vonios kambaryje CosyThermo-10/K (SW) termostatinis vonios maišytuvas ir Rainfall + CosyThermo-10 (SW) dušo sistema. Parinkti dėl patikimos eksploatacijos, komforto ir dizaino derėjimo prie interjero metalinių akcentų. Virtuvėje ir baro zonoje naudotas virtuvinis maišytuvas Ultima-50 (BK/RG).
SALTO SYSTEMS. Naudota išmanioji durų spyna „XS4 One“, juodos matinės spalvos. Pasirinkta dėl efektyvumo ir minimalistinio dizaino. „Salto XS4 One “ spyna sukurta taip, kad atitiktų daugumą europietiškų profiliuotų durų ir spynų standartų.






























