VIZIJA
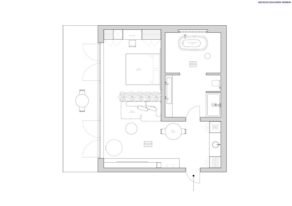
Interjero konceptą lėmė viešbučio lokacija – Baltijos jūros pakraštys – išskirtinė gamta ir greitas oro pasikeitimas. Leidžiant dieną prie jūros galima pagauti lengvą malonų vėją arba lietingą uraganą. Taip pat svarbu paminėti, kad viešbutis skirtas poilsiautojams, kurie keliauja su savo augintiniais. Interjere matomas kontrasto medžiagų spalvų principas – šviesus registratūros holas pereina į aukštą ir tamsią registratūros zoną.
Registratūra: įeidamas į viešbučio holą patenki į pasiruošimo zoną, kur galima nusiplauti ir dezinfekuoti rankas, pagal poreikį nuvalyti augintinio letenėles. Kadangi viešbučio registratūra atvira visiems paplūdimio poilsiautojams, hole yra geriamojo vandens čiaupas ir kavos aparatai.
Registratūros zona tamsi, joje poilsiautojas jaučiasi kaip jūros gilumoje, pailsi nuo kaitros ir saulės. Pasirinkti patvarūs, ilgaamžiški apdailos sprendimai. Pagrindinis patalpos akcentas – banguotas, primenantis teatro dekoraciją akcentinis šviestuvas.
Apartamentai: pasirinkti apartamentai skirti keliautojams su katėmis. Pajūrio įkvėpimas juntamas ir čia. Kambario medžiagiškumas yra sodrių atspalvių, formos apskritos. Korpusiniai baldai prie įėjimo skirti gyvūno dienotvarkei: į apatinius stalčius įdėta kačių dėžutė, kurią katinas lengvai pasiekia per specialiai fasade padarytus apskritimus. Taip pat stalčiuose šeimininkas ras indelių ir vietą guoliui. Pagrindinis šių baldų akcentų tampa bėgimo ratas, kurį poilsiautojas naktį gali užrakinti. Minkštų baldų užvalkalai lengvai nuimami ir skalbiami, vengiama didelio kiekio tekstilės. Kambario apdailos medžiagos atsparios gyvūnų nagams. Apartamentai padalyti į tris zonas – valgymo, poilsio ir miego. Valgymo zonoje atvira mini virtuvė, elektros prietaisai integruoti į šalia stovinčią spintą. Poilsio zonoje vieta televizijai nenumatyta, nes keliautojo už lango laukia nepakartojami Baltijos pajūrio vaizdai. Esant poreikiui, ekranų poilsiautojai ras registratūros zonoje. Poilsio ir miegamojo zonas skiria tikrų augalų vazonas, parinkti augalai nenuodingi. Įrengtas didelis vonios kambarys, kuriame galima pailsėti po aktyvios dienos pliaže.
UAB BRASA. Viešbučio apartamentuose svarbu suplanuoti patogų daiktų sandėliavimą, tam tiko DRESS CODE spintų sprendimai. Pakabų skersinis su LED apšvietimu padeda greitai surasti reikalingus drabužius neįjungiant šviesos, o ištraukiami rėmai padeda tvarkingai sandėliuoti batus ir smulkias aprangos detales. Apartamentų darbo zonoje pakabintas veidrodis su galiniu LED apšvietimu, gaminamu pagal individualų projektą. Jo funkcija dvejopa – jis naudojamas ne tik dažymuisi, bet esant poreikiui ir kaip šviestuvas. Viešbučio registratūroje patogūs kavos staliukai pagaminti naudojant CUBE profilį, staliukai pagaminti pagal erdvei tinkamą proporciją ir dizainą.
DUPONT. „Corian®“ lieto akmens lankstumas padėjo įgyvendinti pagrindinį registratūros akcentą – bangos formos lubinį šviestuvą. Šviestuvui buvo pasirinkta „Cameo White“ spalva. Atitinkamai pagal šviestuvo medžiagiškumą lietas ir registratūros stalviršis, nes „Corian®“ lietas akmuo yra aukštos kokybės ir pasižymi antibakterinėmis savybėmis. Jis puikiai tinka viešosiose erdvėse, ypač kur yra gyvūnų.Viešbučio hole, numatytoje kavos ir higienos zonoje, stalviršiams irgi pasirinktas lietas „Corian ®“ akmuo, nes jis gerai valomas ir atsparus drėgmei.
GROHE. Viešbučio apartamentams pasirinkta elegantiška „Grohe Essence“ kolekcija. Jos natūralios, grakščios linijos puikiai tinka prie bendro interjero koncepto. Visi prietaisai pasirinkti „Brushed Warm Sunset“ metalo atspalvio. Vonios kambario klozetas taip pat pasirinktas iš „Essence“ keramikos kolekcijos. Kadangi klozeto paviršius antibakterinis, jis tinka viešbutyje su gyvūnais, o minimalistinis dizainas puikiai dera prie kambario interjero.
TORK. Po pandemijos švaros ir dezinfekavimo klausimas viešosiose erdvėse liko labai svarbus, todėl viešbučio hole numatyta atskira švaros „sala“ korpusiniuose balduose prie įėjimo. Patogiame aukštyje pakabintas „TORK Xpress® Multifold“ popierinių rankšluosčių dozatorius kartu su TORK odos priežiūros dozatoriumi. Po stalviršiu į spintelę statoma didelė 50 litrų „TORK Elevation“ šiukšliadėžė. Visa produkcija pasirinkta baltos spalvos, nes holo zona yra atskirta nuo registratūros erdvės spalva ir medžiagiškumu. Ant registratūros staliukų pastatomi „TORK Xpressnap“ elegantiški servetėlių dozatoriai, nes laundžo zonoje galima prisėsti su gėrimais. Apartamentuose, vonios zonoje naudojama kompaktinė TORK baltos spalvos šiukšliadėžė.
UAB AUDIOTONAS. Bendro naudojimo erdvių foniniai muzikai paleisti naudojamos pakabinamos AMC SL 30 juodos spalvos kolonėlės. Į registratūros baldus dedamas kompaktiškas garso stiprintuvas „AMC iAC 2X240“, leidžiantis reguliuoti holo ir recepcijos erdves. Šalia – dviejų zonų kontroliavimo „AMC MP22 Dual Media Player / Zone Mixer“ garso grotuvas. Holo laukimo zonoje pakabinti HELGI HP7520 75 informacijos ekranai, kur poilsiautojai gali matyti visą aktualią informaciją. Apartamentų vonioje irgi įrengta foninės muzikos sistema. Lubose sumontuotos minimalistinės AMC PC 3WP garso kolonėlės, pasižyminčios IP54 nuo drėgmės apsaugos klase, o „Acrylic A50+“ grotuvas valdomas belaidžiu tinklu, iškeltu į apartamentų poilsio zoną. Grotuvas prijungtas prie „online“ muzikos sistemų. Eksterjero fasadui apšviesti parinkti „MJL WW02“ lauko šviestuvai.
UAB JUNG VILNIUS. Apartamentams valdyti pasirinkta JUNG KNX centralizuota sistema, kurios programa įdiegiama į „JUNG Visu Pro“ išmanųjį serverį, kas padeda ne tik reguliuoti šviesos srautą, bei ir kambario temperatūrą bei užtamsinimą. Interjerui parinkti Le Corbusier spalvomis dažyti jungikliai LS 990 serijos, kas suteikia interjerui vientisumo jausmą.
ARSAN. Apartamentų vonios kambario dušo zonai pasirinktas nestandartinio dydžio akmens masės padėklas „Radaway Kyntos C/F“. Padėklas montuojamas vienu lygiu su plytelėmis, o jo akmens masės paviršius atsparus braižymui ir yra lengvai prižiūrimas. Bendrai stilistikai išlaikyti pasirinktos elegantiškos minimalistinio dizaino dviejų dalių, nestandartinio dydžio su tamsintu stiklu dušo durys „Radaway Essenza Pro Gold“. Durelių stiklo storis – 8 mm, dėl to jaučiamas didesnis sistemos stabilumas. Prausimosi zonos praustuvas „PAA Modo flow“ gaminamas pagal užsakymą iš „Silkstone“ medžiagos. Jo dėka išgautas didelis patogus stalviršis ir dvigubas praustuvas, kuriame ne tik prausis poilsiautojai, bet ir miegos jų augintinis. Praustuvas turi paslėptą vandens nubėgimą, kas pabrėžia jo minimalistinį ir apgalvotą dizainą. Pasirinkta laisvai pastatoma vonia „Paa Bella“ yra ovalinės formos, kas tinka prie interjero užapvalintų formų. Vonios „Silkstone“ paviršius puikiai tinka dažnai naudoti, yra higieniškas, ilgiau išlaiko vandens šilumą ir yra lengvai prižiūrimas. Virš praustuvo ant sieninių spintelių montuojami apskritos formos „CERCHIO R“ veidrodžiai su LED apšvietimu iš priekio. Veidrodis yra aukštos kokybės, o LED apšvietimas taupo energiją.
UAB AKMESTATA. Kadangi interjero konceptas stipriai susietas su gamta, į apartamentus norėjosi įnešti patvarią natūralią apdailos medžiagą, todėl buvo pasirinktas „Akmestata“ natūralus akmuo. Jis ilgaamžis, atsparus, apsistojęs apartamentuose gyvūnas nepadarys jam žalos. Virtuvės stalviršiui ir darbo staliuko apdailai pasirinktas granitas Alpinus (kilmės šalis Brazilija), paviršius atrodo egzotiškai: dramblio kaulo spalvos fonas, išmargintas auksiniais, rudais ir juodais raštais, kurie suteikia aplinkai elegancijos, kadangi jo raštas primena kopų peizažus. Granito paviršius apšviestas LED apšvietimu, kas sudaro šviesos blikų žaidimą kaip ant jūros vandens paviršiaus.Vonios sienų ir grindų apdailai naudojamos „Cosentino Dekton“ gamintojo medžiagos. Dekton produkto mišinį sudaro daugiau nei 20 natūralių mineralų. Medžiaga atspari smūgiams, subraižymams, kaitrai, šalčiui, ugniai. Sienų apdailai parinktas „Dekton Argentium“ švelnaus natūralaus rašto, grindims – akcentinis ryškus „Dekton Khalo“ paviršius.
GAJA DECOR. Registratūros zonos išraiškingu elementu tampa stabilizuoti augalai vazonuose, kas ne tik puošia, bet ir padeda apibrėžti poilsiautojų sėdėjimo vietas. Taip pat registratūros pagrindinė siena iš brutalaus akmens apdailos sušvelninama miško augalų apželdinimu, kas sukuria jūros uolos pojūtį.
TARKETT. Viešųjų erdvių ir apartamentų grindims pasirinktos novatoriškos „Tarkett“ grindų dangos. Viešbučio lokacija lemia dažną valymą, nes į vidų bus įnešama smėlio ir drėgmės. „Tarkett“ vinilinės grindų plytelės patvarios esant dideliems srautams ir padeda išspręsti akustikos klausimą. Papildomai apsaugai pasirinktos neslidžios „iD Insiration Century Down“ vinilinės modulinės plytelės. Švariai zonai prie registratūros parinkta 100 proc. perdirbama kiliminių plytelių kolekcija „Desso Serene“. Jos neutralus raštas ir prigesintas atspalvis suteikia ramumo pojūtį ir atitinka interjero koncepciją. Apartamentuose įrengtos vinilinės modulinės „iD Insiration – Variant Oak Light Grey“ grindų dangos. Dangos tikroviškas raštas nesiskiria nuo tikros medienos, bet yra daug patvaresnis naudoti.
TOP SPYNOS. Viešbučio apartamentams pasirinktos minimalistinės „Corona Maxima“ serijos rankenos. Rankenų dizainas preciziškas, jos puikiai tinka prie modernaus interjero. Kadangi poilsiautojas valymo metu norėtų apsaugoti savo asmeninius daiktus, apartamentų spintoje įrengtas „mySafe premium 350 EB“ seifas. Seifo viduje įrengtas LED apšvietimas, kas supaprastina jo naudojimą spintoje. Seifo korpuso spalva derinta prie spintos vidaus atspalvio.






















