VIZIJA
Viešbučiai keliautojams yra tik laikina stotelė apsistoti, didžioji dalis jų Lietuvoje yra žemiško kolorito, neišsiskiria savo interjeru. Kai kurie žmonės, praleisdami nemažą dalį laiko namie, pradeda norėti ištrūkti iš rutinos ir kiekvieną dieną matomo interjero ir pabėgti į išskirtines erdves, kurios leistų atostogas praleisti komfortabiliai ir įsimintinai. Išskirtinis kambario interjeras ypač maloniai nustebina pasirinkus trumpo laikotarpio atostogas, kurias dabar žmonės renkasi vis dažniau ir dažniau.
Pristatome mūsų viešbučio interjerą, kuris yra ryškus, spalvingas ir išskirtinis. Taip pat idėjos sėmėmės iš siurrealisto René Magritte’o darbų Le miroir invisible ir La connivence, kurie papildo mūsų erdves, sukuria jausmą, lyg būtume sapne, bei padeda mūsų interjerą paversti siurrealistiniu.
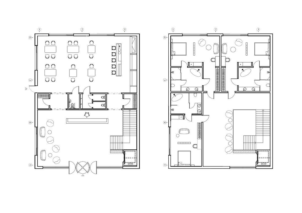
UAB BRASA. Viešbučio apartamentų vonios kambariuose pasirinkome naudoti nestandartinius arkos motyvą primenančius veidrodžius, leidžiančius sukurti siurrealistinį akcentą.
Didelis privalumas tas, kad veidrodžius galima pagaminti su LED apšvietimu, nes laiką leidžiant vonios kambaryje labai svarbu tinkamas šviesos kiekis. Ypač kai tokioje erdvėje nėra natūralios šviesos. Vonios erdvei puikiai tinka veidrodis su priekiniu ir galiniu 4000 K apšvietimu bei integruotu sensoriniu jutikliu ir apsauga nuo rasojimo.
GROHE. „Atrio“ kolekcija sužavėjo dėl savo estetiškų lenktų formų. Mūsų vonios kambariui labiausiai tiko „Atrio“ kolekcijos „Contemporary“ maišytuvas 32042AL3 ir laisvai pastatomas maišytuvas 32653AL3. Duše pasirinkome naudoti mums didelį įspūdį palikusią TEMPESTA 250 26692000 dušo sistemą.
Tokią sistemą pasirinkome, nes norėjome, kad viešbutyje apsistoję žmonės vonios kambaryje galėtų atsipalaiduoti ir patirti tikrą lietaus pojūtį, sujungiantį su gamta, po ilgos ir sunkios dienos. Tokį atpalaiduojantį pojūtį leidžia sukurti didesnė nei įprasta lietaus galva, dėl ko šis produktas atitiko mūsų poreikus.
UAB AUDIOTONAS. Sieniniai garsiakalbiai yra svarbi ir neatsiejama viešbučio erdvių dalis. Jų funkcija ne tik groti foninę muziką, bet ir transliuoti svarbius pranešimus. Mes viešbučio erdvėse pasirinkome naudoti sieninius garsiakalbius „PS 6 Plastic Loudspeaker“, kurie atlieka savo funkcijas ir yra nesudėtingai priderinami prie bet kokio interjero projekto, nes yra estetiški, lengvai paslepiami bei pasižymi visomis geriausio garso funkcijomis.
UAB JUNG VILNIUS. Jung KNX sistema yra tikras išsigelbėjimas viešbučio svečiams ir darbuotojams bei vienas svarbiausių dalykų, dėl kurio viešbutyje galime jaustis komfortabiliai. „JUNG Visu Pro Hotel“ programa, įdiegta „JUNG Visu Pro“ serveryje, leidžia daugelį funkcijų sujungti į vieną paprastą valdymo sąsają, kuria nesudėtingai išmaniaisiais telefonais ar ekranais gali naudotis kiekvienas.
Viešbutyje užtenka sukurti keletą paprastų scenų ir klientas gali džiaugtis skirtingais veiklos režimais. Taip pat mūsų sukurto viešbučio interjeras papildytas LS 990 serijos „Graphite Black Matt“ elektros lizdais, jungikliais ir sukamaisias šviesos stiprumo reguliatoriais.
ARSAN. Vonios kambariui išrinkome keletą produktų iš ARSAN salono. Pirmasis – „Radaway Furo Gold KDD“ kampinė dušo kabina. Ši kabina labiausiai atitiko mūsų poreikį dėl savo dizaino bei „Easy Clean“ stiklo dangos, saugančios nuo kalkių. Taip pat pasirinkome „Radaway Kyntos F“ baltą dušo padėklą dėl neslystančios ir lengvai prižiūrimos dangos.
Mūsų manymu, vienas išskirtinių akcentų kambaryje yra „SilkStone Paa Bella“ laisvai pastatoma vonia. Ją pasirinkome matinės baltos spalvos. Vonia puikiai dera interjere, nes yra ovalios formos. O vonią papildo mūsų pasirinktas praustuvas „Round Silk On 410 Silkstone“.
TARKETT. TARKETT grindų dangas naudojame visose viešbučio patalpose. Pagrindinėse viešbučio erdvėse naudojame vinilines modulines grindų dangas „iD Mixonomi“ („Reflector COPPER“; „Tessitura CLAY“; „Tessitura CAPUCCINO“). Šį dizainą pasirinkome, nes jis atskleidžia mūsų interjero viziją ir tinka intensyvaus judėjimo vietoms.
Taip pat žavi galimybė žaisti su spalvomis ir formomis. Kambariuose naudojame prabangumo pojūtį suteikiančias kilimines plyteles „Palatino A072 4000“ dėl galimybės būti su „SoundMaster“ akustiniu pagrindu. Vonios kambariuose galima atrasti sistemą, skirtą šlapioms patalpoms „AQUARELLE FLOOR – Raw Concrete MEDIUM GREY“.
TOP SPYNOS. Savo ryškiam ir spalvingam interjerui pasirinkome išraiškingas MOOD kolekcijos durų rankenas („ONE strawberry red“ spalvos). Būtent šios durų rankenos yra žaismingos ir tampa akcentu, papildančiu interjerą, kuris mums padeda sukurti dar svajingesnę erdvę.
Šios rankenos ne tik yra puikus akcentas ir erdvę sujungiantis elementas, tačiau ir atrodo estetiškai, yra patvarus bei ilgaamžis produktas. Taip pat kambario interjerą papildėme „Basi MySafe“ seifu „350 pink El“ spalvos. Šis seifas ne tik atlieka savo naudingą funkciją saugoti daiktus, bet ir tampa estetiška detale interjere.
TORK. Tiek prieš pandemiją, tiek po jos viešbučiuose labai svarbu užtikrinti tinkamą higieną. Tai mums leidžia padaryti nepakeičiamieji „Tork“. Vonios erdvėje naudojame modernų „Tork“ odos priežiūros priemonių dozatorių su „Intuition™“ jutikliu (561608) ir ekologiškumą užtikrinantį „Tork Singlefold“ rankšluosčių dozatorių (553008).
Taip pat vonios interjerui pasirinkome naudoti „Tork“ servetėlių dozatorių (460013) ir „Tork“ 50 l šiukšliadėžę (563008). Jų produktai yra puikiai sukurti higieniškai naudoti su judesio jutikliais, patvarūs ir estetiški.
AKMENSTATA. Pagrindinis interjero akcentas bendroje erdvėje yra laiptai. Akcentu jie tapo dėl mūsų sprendimo naudoti onikso akmenį „Rosa“. Tai yra egzotiškos rožinės spalvos plokštė, pasižyminti neįtikėtinu skaidrumu, spalva ir gyliu tarp ryškių juodų gyslų. Šis akmuo atspindi mūsų interjero pagrindinę švelnią rožinę spalvą ir paverčia jį svajingu bei prabangiu.
Šis onikso akmuo pasikartoja ir vonios kambario stalviršyje dėl švelnaus prisilietimo pojūčio, kuris kiekvienam apsilankiusiam padės pajusti prabangos jausmą.Taip pat vonios kambaryje yra suprojektuotos akcentinės lentynos iš „Cosentino®“ gamintojo „Silestone“ prekės ženklo, „Sunlit days“ kolekcijos, „Arcilla red“ spalvos. Šio dirbtinio akmens ir natūralaus akmens spalviniai kontrastai vienas kitą papildo.
GAJA DECOR. Viešbučio interjerą puošia GAJA DECOR produktai, kuriuos naudojame tiek bendrose erdvėse tiek apartamentuose. Laukiamojo erdvėje naudojame Stabilizuotų augalų kompoziciją su džiovintomis smilgomis.
O svarbiausiai erdvei – vonios kambariui, kuriame viešbučio klientai gali atsipalaiduoti sukūrėme miško augalų sieną iš stabilizuotų augalų, kuri sukuria ramybės jausmą ir atpalaiduoja, leidžia pabūti vienam su gamta bei pasijusti lyg džiunglėse.
Taip pat toks dekoro pasirinkimas suteikia erdvei gaivumo pojūtį, estetinį vaizdą bei ramybės oazę vonios kambaryje, kurioje galima atsipalaiduoti ir pamiršti visus sunkius dienos darbus.
DUPONT. „Corian®“ dirbtinis akmuo žavi dėl savo ilgo sąrašo nesibaigiančių teigiamų savybių, kurios puikiai tinka visuomeninėms erdvėms. Mūsų kurtame interjere jis savo vietą atrado vonios kambaryje, nes neįgeria drėgmės ir nešvarumų, yra higieniškas ir labai lengvai valomas, atrodo estetiškai ir yra labai platus spalvų pasirinkimas, kurį galima priderinti bet kokiame interjere. Mes pasirinkome „Hot“ dirbtinio akmens spalvą, kuri suteikia ryškumo ir sujungia ją su kitomis erdvėmis.




















