Anykščiai pastaraisiais metais kryptingai ieško sprendimų, kaip kurti patrauklesnę ir gyventojams patogesnę aplinką. Miesto dalyvavimas iniciatyvoje „Išmanusis miestas“ tapo impulsu permąstyti iki šiol Lietuvoje įprastą daugiabučių modernizavimo praktiką.
„Anykščiai nuolat siekia naujovių, išmanių sprendimų, bendruomenės įtraukimo, o svarbiausia – geresnio gyvenimo savo žmonėms“, – sako Anykščių rajono meras Kęstutis Tubis. Pasak jo, tradicinė renovacija dažnai apsiriboja techniniais sprendimais, nepaliečiant to, kas gyventojams svarbiausia – kasdienės gyvenimo kokybės.
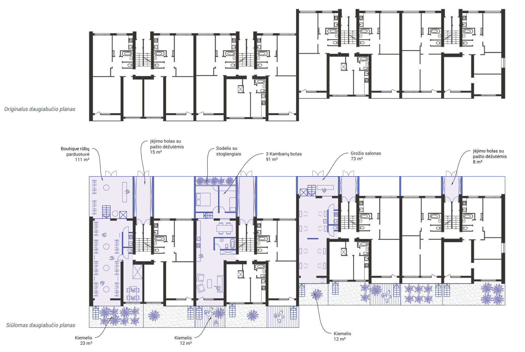
„Tipiniai daugiabučiai Lietuvoje dažniausiai atnaujinami tipiniais sprendimais, paliekant nuošalyje esminį gyvenimo kokybės pagerinimą. Mes norėjome įrodyti, kad įmanomi ir kitokie, racionalūs, bet žmogui palankesni sprendimai“, – pabrėžia meras.

Daugiau nei pastatų atnaujinimas
Savivaldybės parengta miesto centre esančių daugiabučių kvartalų atnaujinimo koncepcija siekia kur kas daugiau nei fasadų ar inžinerinių sistemų modernizavimo. Ji orientuota į visuminį miesto centro atgaivinimą.
„Miestuose dažnai tvarkomos aikštės, parkai, viešosios erdvės, tačiau labai dažnai pamirštami daugiabučių kvartalai, kurie turi milžinišką įtaką ne tik miesto vaizdui, bet ir socialiniam gyvenimui“, – teigia K. Tubis. Todėl Anykščiuose kalbama apie kompleksinius sprendinius, apimančius ne tik pačius pastatus, bet ir viešąsias erdves, komercines patalpas pirmuosiuose aukštuose, kiemus bei kaimynystės kokybę.
Strateginė vieta – pats miesto centras
Projektui pasirinkta J. Biliūno ir Dariaus ir Girėno gatvių teritorija – pati svarbiausia miesto dalis. Ji yra Anykščių regioninio parko teritorijoje, urbanistiniame draustinyje ir šalia pagrindinės miesto arterijos.
„Tai visiškas miesto centras – vieta, kur ne tik gyvenama, bet ir nuolat pravažiuojama, matoma iš visų pusių. Todėl čia priimti sprendimai daro įtaką visam miesto veidui“, – akcentuoja meras. Pasak jo, tikslas – sukurti gyvą, jaukų ir patrauklų centrinės dalies gyvenamąjį rajoną, kuris nebūtų vien „miegamasis“.


Istorinis identitetas kaip stiprybė
Anykščių centrinėje dalyje išlikęs 1967 metais statytų penkiaaukščių daugiabučių kvartalas yra svarbus miesto istorijos liudininkas. Teritorija patenka ir į kultūros paveldo, ir į gamtos apsaugos zonas.
„Šie pastatai žymi reikšmingą miesto raidos etapą, todėl mums buvo svarbu ne tik atnaujinti, bet ir išsaugoti Anykščių tapatybę“, – sako K. Tubis. Rengiant koncepciją buvo analizuojami istoriniai planai, kurie atskleidė, kad dalis kvartalo iškilo nugriovus senesnius medinius pastatus.
„Reaguojant į istorinį kontekstą ir mažesnio mastelio aplinką, pasiūlėme netradicinį sprendimą – suskaidyti pastatų tūrį ir sukurti mažesnių, blokuotų namų įvaizdį“, – paaiškina meras.
Modelinis kvartalas visam miestui
Savivaldybė tikisi, kad šis projektas taps pavyzdžiu ir kitiems Anykščių mikrorajonams. „Manau, kad šis kvartalas gali veikti kaip praktinis pavyzdys – gerosios praktikos įgyvendinimas, kuris įkvepia kitus ir formuoja viešuosius bei socialinius pokyčius“, – teigia K. Tubis.
Pasak jo, tokie projektai keičia ne tik aplinką, bet ir žmonių gyvenimo būdą, požiūrį į kaimynystę bei bendruomenę.
Bendruomenės įsitraukimas – lūžio taškas
Iki šiol šiame kvartale renovacijos poreikis nebuvo akivaizdus – namai plytiniai, šildymo kainos palyginti nedidelės. Tačiau pristatyta viską apimanti koncepcija iš esmės pakeitė situaciją.
„Pristačius koncepciją visiems 11 centro kvartalo daugiabučių gyventojams, visi išreiškė norą dalyvauti modernizavimo programoje“, – sako meras. Tai lėmė ne tik architektūriniai sprendimai, bet ir savivaldybės įsipareigojimai: dalinis finansavimas lodžijų ir balkonų įrengimui, vidinių kiemelių formavimui, viešųjų erdvių tvarkymui.
„Ši modernizavimo programa pas mus yra viską apimanti – žmonės mato realią naudą, o ne tik pažadus“, – pabrėžia K. Tubis.
Nuo vizijos – prie statybų
Projektas jau peržengė planavimo etapą. „Šiandien jau turime parengtą vieno namo techninį projektą, gautą statybą leidžiantį dokumentą ir pradėtus darbus“, – teigia meras. Kiti namai rengia investicinius projektus, o šešių daugiabučių gyventojai jau pasirašė valstybės paramos sutartis.
Anykščiai po dešimties metų
Kalbėdamas apie ateitį, K. Tubis pabrėžia, kad architektūra turi tarnauti žmogui. „Architektūra yra gyvas, nuolat kintantis organizmas, orientuotas į žmogų ir jo gyvenimo būdą“, – sako jis.
Jo teigimu, įgyvendinus šią koncepciją, miesto centras taps socialesnis, atviresnis ir labiau bendruomeninis. „Miestas įgis stipresnę tapatybę, savitą charakterį ir bus labiau orientuotas į žmogų, o ne tik į objektus. Tai ir yra tikroji gyvenimo kokybė.“






























































